Commercial Kitchen Solutions

Products/Services

Table Top, Food Prep, Cooking Utensils

Smallwares

Present your best

Furniture

We help you put it together

Design

New equipment

Equipment

Used equipment

Used Equipment

Smallwares

From forks and spoons to pots and pans. We have a larger variety of smallwares in stock. We carry several styles of glass ware, the most popular sizes of platters, bowls, and multiple patterns of flatware. We also carry cleaning and janitorial supplies, bar tending tools, and much more. If we don’t have it, we can get it for you. In most cases we can have it in Anchorage in just one week. We can deliver anywhere in the Anchorage area and we ship all over Alaska. Please click here to contact us if you would like us to send you catalogues or flyers.

Furniture

Time to update you dining room? We represent a broad line of furniture manufacturers. We can outfit banquet halls, fast food, fast casual, or fine dining facilities. Our furniture showroom gives you the opportunity to pick the styles of chairs, barstools, and tables. We have the most current fabric samples, laminate selections, and wood finishes to choose from. If you have a space and need help designing a seating layout, we can help. If you are looking for booths, banquets, tables, chairs, bar seating and lounge areas, or all of the above, our design team can help maximize your space.

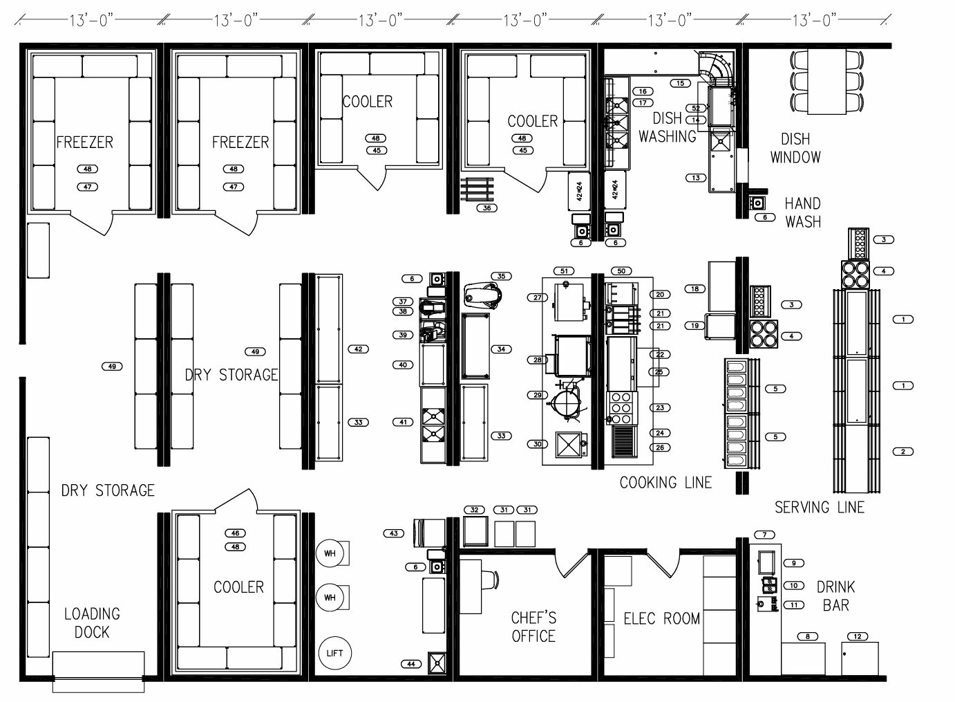
Design

Our in house design team can provide kitchen, bar, and seating layouts that will maximize your space. When we layout a space we take into consideration issues such as food delivery and storage, food safety and preparation, flow and efficiency of cook lines, and bar areas. The speed and access for servers, runners, and bussers, including waste management and disposal. We use the same software as most architects and engineers which helps us to work quickly and efficiently to provide a space that your customers will love.

Equipment

We stock both new and used equipment. We stock commonly desired equipment. We are the dealer for manufacturers such as Captive aire exhaust hoods, Nor-Lake walk-in coolers and freezers, and Vulcan Range oven and steam equipment. We also design reach-in refrigerators and freezers, custom stainless tables, counters, sandwich prep tables, steam tables, mixers, slicers, heated units, etc. to fit you space requirements.

Used Equipment

We stock both new and used equipment. We stock commonly desired equipment. We are the dealer for manufacturers such as Captive aire exhaust hoods, Nor-Lake walk-in coolers and freezers, and Vulcan Range oven and steam equipment. We also design reach-in refrigerators and freezers, custom stainless tables, counters, sandwich prep tables, steam tables, mixers, slicers, heated units, etc. to fit you space requirements.